XD-D防爆检修动力配电箱(IIB IIC)

   
适用范围
1、爆炸性气体环境:1区、2区
2、场所中危险气体或蒸气:IIA、IIB、IIC
3、温度组别:T1~T6
4、户内、户外(防护等级IP54, 可达IP65)



产品特点
1、外壳采用铸铝合金或钢板焊接成型,表面喷塑
2、内装DZ20、CM1断路器及类似断路器
3、具有过载、短路保护功能
4、进线腔、元件腔、出线腔分别独立
5、输入、输出:3P+N+PE
6、可根据用户要求特制
7、钢管或电缆布线,电缆布线须配电缆夹紧密封接头

  Applying scope
1、Explosive gas atmospheres:Zone 1&2
2、Dangerous gases or vapors zone: IIA、IIB、IIC
3、Temperature classes:T1~T6
4、 Indoor and outdoor (IP 54,It could be designed as IP65 according to user′s requirements)

Features
1、Enclosure is made of casting aluminium alloy or steel plate,surface is sprayed with plastics
2、Built-in NC100H or NC100LS circuit breakers
3、With overload and short circuit protection function
4、Inlet compartment, component and outlet compartment are independent from each other
5、Input and output: 3P+N+PE
6、For user′s requirements, it could be specially made
7、Wiring with conduit or cable,For cable, it should be fitted with explosion-protected cable sealing connector

   
主要技术参数 Specification  
型号
回路数
额定工作电压(V)
主回路额定工作电流(A)
支路额定工作电流(A)
使用类别
极数
XD□-2D
2
380
≤200
10,16,25,32,40,63
80,100,125,160,200,
225,250,300,350
AC3
3P+N+PE
XD□-3D
3
XD□-4D
4
≤250
XD□-6D
6
≤400
 
防护等级
防爆标志
防腐等级
进口线规格/电缆外径(mm)
出口线规格/电缆外径(mm)
IP54、*IP65
Exd II BT6
Exd II CT6
W,WF1,WF2
G40~G50/Ф16~Ф36
G32~G40/Ф12.5~Ф24.5
 
型号含义 Type designation  
   
 
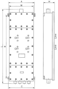
外形尺寸及示意图 Outline dimensions  
 
型号
回路数
尺寸
L
W
H
A
B
C
XD□-2D100
2
735
402
182
468
531
458
XD□-3D100
4
1070
851
XD□-6D100
6
1405
1063