| |
|
| |
|
BAY51系列隔爆型防爆荧光灯(IIB)
|
|
| |
|
适用范围
1、1区、2区危险场所。
2、ⅡA、ⅡB类爆炸性气体环境。
3、可配装光源(普通双脚灯管):2×40W、1×40W、2×30W、1×30W、2×20W、1×20W。
Application
1、Can be used in Zone 1 and Zone 2 dangerous places.
2、Can be used in ⅡA、ⅡB group explosive atmosphere.
3、Suitable for luminous sources (normal double-feet illuminating
lamp): 2×40W、1×40W、2×30W、1×30W、2×20W、1×20W. |
产品特点
1、铸铝合金外壳,压铸成形,表面喷塑,结构轻巧。
2、更换灯管时,只须拧下端盖,就可直接进行更换灯管,壳体上设有铰链。
3、可调型在维护时,可以将一端放下,方便更换灯管。
4、钢管或电缆布线均可。
5、符合GB3836-2000,IEC60079标准要求。
Features
1、Diecasted aluminium alloy shell with plastic-sprayed surface.
2、Changing lamp tube must twist end cover.
3、Rechanged type fluorescent lamp, the chain is setted on the shell put one end down when maintaining, which is easy for maintainence.
4、Suitable for both steelpipe and cable wiring.
5、Suitable for GB3836-2000, IEC60079 standard request. |
|
 |
| |
|
 |
| |
|
| 主要技术参数 Main technical parameters |
|
防爆标志 |
防护等级 |
电缆外径 |
进线口螺纹 |
Exd II BT6 |
IP65 |
10-14 |
3/4 |
|
|
| |
|
额定功率(W) |
20 |
30 |
40 |
60 |
80 |
额定电压(V) |
220 |
|
|
| |
|
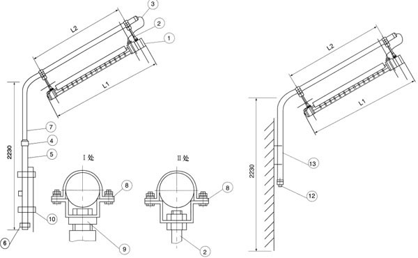
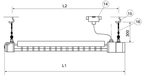
| 外形及安装举例 Outline and mounting example |
|
 |
 |
法兰式(f) |
 |
 |
序号 |
名 称 |
备 注 |
序号 |
名 称 |
备 注 |
1 |
灯具 |
|
10 |
U型管夹 |
用户自备 |
2 |
杆 |
|
11 |
立柱 |
|
3 |
挠性连接管 |
1/2″用户另配 |
12 |
活接头 |
3/4″ |
4 |
接头 |
|
13 |
固定板 |
|
5 |
立柱 |
|
14 |
接线盒 |
3/4″ |
6 |
活接头 |
|
15 |
挂勾 |
|
7 |
弯杆 |
11/4″ |
16 |
链条 |
|
8 |
管夹、安装架 |
|
17 |
杆 |
|
9 |
堵头 |
|
18 |
安装架 |
|
|
| |
|
| |
|